-
페이지 정보

본문
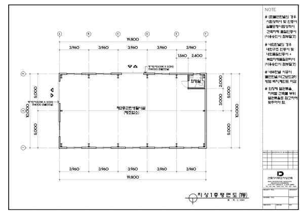
신축 창고 안에 사무실 공간을 꾸미려고 합니다.
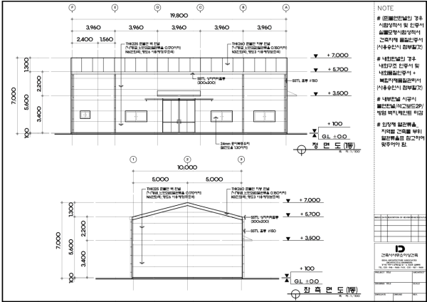
면적 : 가로19,800mm, 세로 10,000mm
칸막이 면적 3,960mm, 높이 3,600mm
덮개 뚜껑 면적 3,960mm
세부사항
사무실과 회의실 구분
사무실 : 6500mm 회의실 : 3500mm
사무실 : 출입구 스윙도어1, 창고입출 스윙도어 1
창고 쪽 : 샷시 1 (1500x45)
회의실 : 출입구 헹거도어 1
견적서 부탁드립니다.
벽면 브라켓 10,000 사이즈 부착용, 좌우 브라켓
면적 : 가로19,800mm, 세로 10,000mm
칸막이 면적 3,960mm, 높이 3,600mm
덮개 뚜껑 면적 3,960mm
세부사항
사무실과 회의실 구분
사무실 : 6500mm 회의실 : 3500mm
사무실 : 출입구 스윙도어1, 창고입출 스윙도어 1
창고 쪽 : 샷시 1 (1500x45)
회의실 : 출입구 헹거도어 1
견적서 부탁드립니다.
벽면 브라켓 10,000 사이즈 부착용, 좌우 브라켓
댓글목록
등록된 댓글이 없습니다.

